Jauns dzīvojamais kvartāls Pierīgā, Katlakalnā. Skatīt kartē →
Pieejamie zemes gabali 1. un 2. izbūves kārtā
| Objekts | Platība | Cena |
|---|
| Objekts | Platība | Cena |
|---|
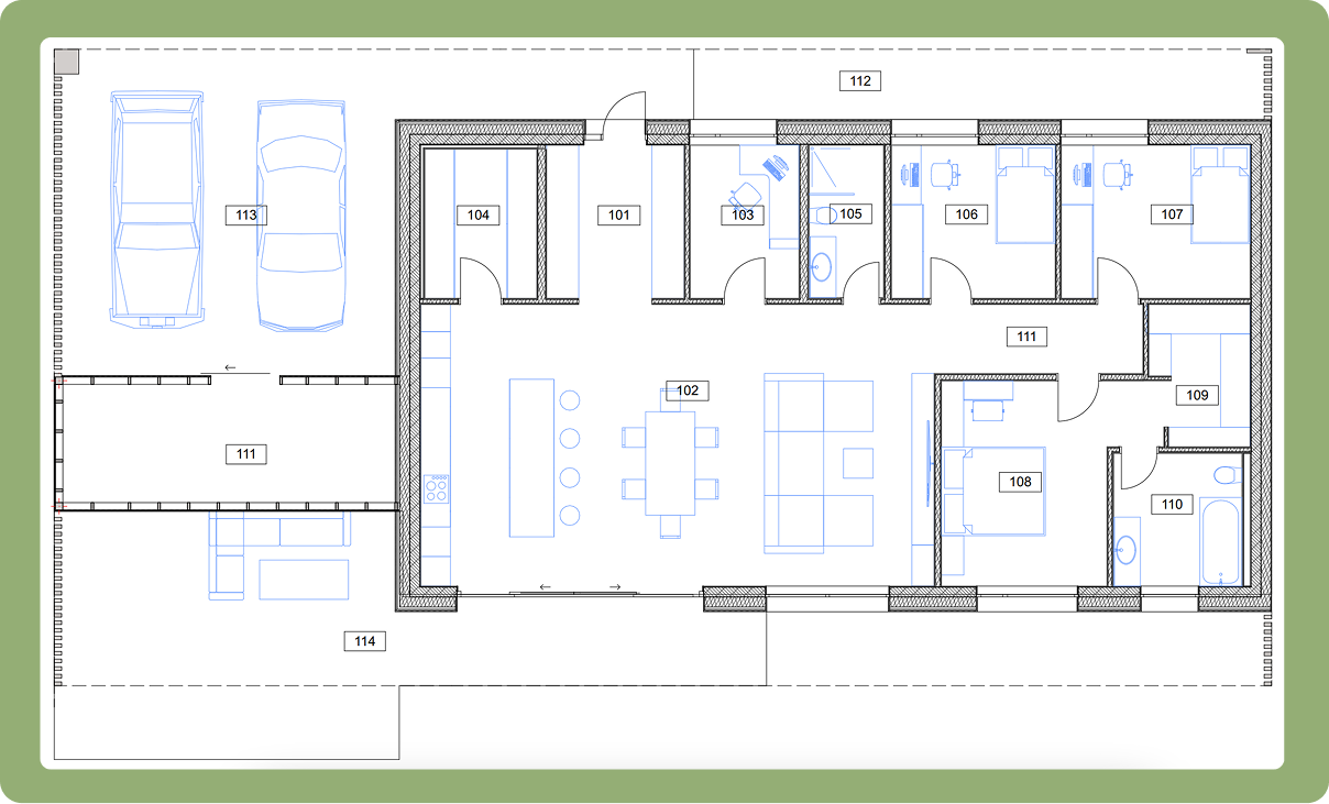
Iespēja kopā ar mums uzbūvēt māju Olektes kvartālā, iesaistoties plānošanas un būvniecības procesā, bet nepārslogojot sevi.
Iespējams veikt korekcijas mājas plānojumā un platībā
Kvartāla novietojums blakus Olektes upei apvieno dabas klātesamību, ātri sasniedzamu Rīgas centru un visu ikdienai nepieciešamo pavisam netālu.

Iepazīsti mūsu jauno projektu